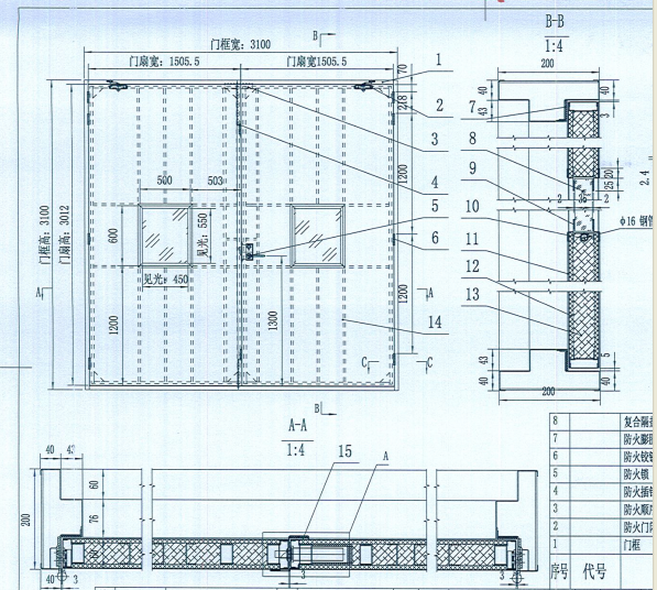
³¬´ó·À»ðÃÅ£¬ ·À»ðßù¾ÝÉú²úÖÆÔì²ÄÁϵIJ»Í¬£¬¿É·ÖΪľÖÊ·À»ðÃÅ,¸ÖÖÊ·À»ðÃÅ,²»Ðâ¸Ö·À»ðÃÅ,·À»ð²£Á§ÃÅ¡¢·À»ð¹¤ÒÕÃŵȡ£¶ø×÷Ϊ´ó¹æ¸ñÃŶ´¿ÚµÄÓÃÃÅʹÓ㬸ÖÖÊ·À»ðÃÅÎÞ·ÇÊǽÏÀíÏëµÄÑ¡Ôñ¡£ ¸ÖÖʳ¬´ó·À»ðÃÅÔÚÑ¡²Ä¼°ÖÆÔ칤ÒÕ·½Ãæ¾ù´ïµ½ºÍ³¬¹ý¹ú¼Ò±ê×¼£¬Èç±ê×¼ÖÐÒªÇóÃÅÃæ¡¢ÃÅ¿ò¡¢½ÂÁ´¸Ö°åºñ¶È·Ö±ðΪ0.8mm£¬1.2mmºÍ3.0mm£»Êµ²â½á¹ûÊÇ1.2mm,1.6mm¼°4.5mm£¬Ô¶¸ßÓڹ淶ҪÇó£¬Å䱸¹ú¼Ê¶¥¼¶ÃÅÌåÎå½ð¼þ£¬½Ï´ó³Ì¶È±£ÕÏ´ó³ß´ç·À»ðÃŰ²È«ÐÔ¡¢Îȶ¨ÐÔ¡£ ²úÆ·²ÉÓÃÏȽøÅçÍ¿¹¤ÒÕ½øÐбíÃæ´¦Àí£¬×ÔÈ»¾ùÔÈ¡¢ÃÀ¹Û´ó·½£¬Æ·ÅÆ·À»ðÎå½ð£¨·À»ðËø¡¢±ÕÃÅÆ÷¡¢Ë³ÐòÆ÷¡¢½ÂÁ´¡¢²åÏú£©·À»ðÅòÕÍÌõ¼°·À»ð²£Á§×é³É£¬ÆäÄÍ»ðÐÔÄÜÈ«²¿·ûºÏ¹ú¼Ò±ê×¼¡£ÃÅÌå³ß´ç¿É¹æ¸ñ¿Í»§ÐèÇó¶¨ÉíÖÆ×÷£¬½Ï´ó¿É´ïµ½3100*3100mm£¬³ä·Ö×ðÖØÓû§ÒâÔ¸¡£ÐÔÄÜ´ïµ½¹ú¼Ò±ê×¼GB12955-2008ÒªÇóµÄÎȶ¨ÐÔ¡¢ÍêÕûÐÔ¡£      ³¬´ó·À»ðÃų§¼ÒÏà¹ØÍÆ¼ö£º ³¬´ó·À»ðÃÅ ·Ç±ê·À»ðÃÅ 2.4Ã׳¬´ó·À»ðÃÅ 2.5Ã׳¬´ó·À»ðÃÅ 2.6Ã׳¬´ó·À»ðÃÅ 2.7Ã׳¬´ó·À»ðÃÅ 2.8Ã׳¬´ó·À»ðÃÅ 3Ã׳¬´ó·À»ðÃÅ 3.3Ã׳¬´ó·À»ðÃÅ 3.6Ã׳¬´ó·À»ðÃÅ 3.9Ã׳¬´ó·À»ðÃÅ ÄϾ©ÍؼªÏû·ÀÉ豸ÓÐÏÞ¹«Ë¾ µç »°£º025-83997899 ´« Õæ£º025-56671585 Ïú ÊÛ£º18061615050(΢ÐÅͬºÅ) ÊÛ ºó£º15950558388 ÒµÎñQQ £º437181679 ÓÊ Ï䣺njtjxf@163.com Íø Ö·£ºwww.91904.cn ( 2 - 5Ã×ȫϵÁзÀ»ðÃŲúÆ·Çëµã»÷µÇÂ¼ÍØ¼ªÏû·À¹Ù·½ÍøÕ¾)
|