全国空降快餐qq群联系方式,深圳盐田区中高端场子/外卖工作室广州大圈高端工作室 ,广佛高端98茶,qq小妹二维码图片

 
 
 
 
²úÆ·ÖÐÐÄ
 

 ·À»ðÃÅ´°ÏµÁÐ
 
 ¡¤·À»ðÃÅ
 ¡¤³¬´ó·À»ðÃÅ
 ¡¤·À»ð´°
 ¡¤·À»ð¾íÁ±ÃÅ
 ¡¤µ²ÑÌ´¹±Ú
 ¡¤·À»ð¸ô¶Ï
 ÌØÖÖÃÅ´°ÏµÁÐ
 
 ¡¤·À±¬ÃÅ´°
 ¡¤Ð¹±¬ÃÅ´°
 ¡¤ÌØÖÖ¸ÖÃÅ
 ¡¤¸ôÈÈ·À»ðÃÅ
 ¡¤ÈË·ÀÃÅ
 ¡¤ÅäÌ×É豸
 ¡¤Ö¸µ¼¼Û¸ñ
 Ïû·À¹©Ë®ÏµÁÐ
 
 ¡¤Ïû»ð˨
 ¡¤Ë®Ç¹Ë®ÅÚ
 ¡¤Ë®±Ãϵͳ
 ¡¤ÅçÁÜϵͳ
 ¡¤¸øË®¹Ü·
 Ãð»ð¾ÈԮϵÁÐ
 
 ¡¤Ãð»ðÆ÷
 ¡¤³¬Ï¸¸É·Û
 ¡¤ÅÝÄ­Ãð»ð
 ¡¤ÆøÌåÃð»ð
 »ðÔÖ±¨¾¯ÏµÁÐ
 
 ¡¤¸ÐÑÌ̽²â
 ¡¤Éù¹â̽²â
 ¡¤È¼ÆøÌ½²â
 ¡¤»ðÔÖ¿ØÖÆÆ÷
 ¡¤¿ØÖÆÄ£¿é
 ¡¤Ïû·Àµç×Ó
 Æ÷²Ä×°±¸ÏµÁÐ
 
 ¡¤Ë¨ÏäϵÁÐ
 ¡¤Ó¦¼±ÕÕÃ÷
 ¡¤¸öÈË·À»¤
 ¡¤·À»ð¶ÂÍ¿ÁÏ

ÁªÏµÎÒÃÇ
 
µç»°£º025-83997899
´«Õ棺025-56671585
ÊÖ»ú£º180 6161 5050
ÊÛºó£º159 5055 8388
꿅᣼www.91904.cn
µØÖ·£º
ÄϾ©ÊÐÆÜÏ¼ÇøÂõ¸ÞÇÅ´´ÒµÔ°¿Æ¼¼Ñз¢»ùµØÒú´ºÂ·18ºÅ
 
 
³¬´ó¹æ¸ñ·À»ðÃÅ  


³¬´ó¹æ¸ñ·À»ð²£Á§ÃÅ


 

·À»ð²£Á§ÃÅÒòÆäÄÚ²¿Ö÷Òª²ÉÓôóÃæ»ý·À»ð²£Á§¶øµÃÃû£¬°ÚÍÑÁË´«Í³·À»ðÃŹ¦Äܵ¥Ò»ÎÊÌ⣬Ëü¿ÉÒÔ¼¯·À»ðÓëÃÀ¹ÛÓÚÒ»Ì壬ʵÏÖÄÍ»ð¡¢Í¸Ã÷¡¢²É¹âµÄ×÷Óã»ÊÇÉÌÒµ½¨Öþ½ÏÀíÏëµÄÑ¡Ôñ£¬¹ã·ºÓ¦ÓÃÔÚ¸÷´óÉ̳¡¡¢Ð´×ÖÂ¥¡¢±ö¹Ý¡¢»áËùµÈ²¿Î»¡£

 

²£Á§·À»ðÃÅ¿ò¼Ü²ÉÓýðÊôÖÆ×÷£¬Ò»°ãΪ¶ÆÐ¿¸Ö°å»òÕß²»Ðâ¸Ö²ÄÖÊ£»ÄÚ²¿ÏâǶA¼¶¹à½¬·À»ð²£Á§£¬ºñ¶È¿É´ïµ½26-30mm£¬ÓÉÓÚ²£Á§ÄÚ²¿¹àÓзÀ»ðÒº£¬½ÏΪ³ÁÖØ£¬ÃÅ¿ò¼°ÃÅÉȱ߿ò±ØÐë²ÉÓüá¹ÌÄÍÓÃÐͲÄ¡£

 

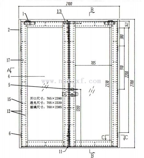
Ò»°ã´ËÀà´ó²£Á§·À»ðÃųߴçΪµ¥ÉÈ1000*2300mmÒÔÄÚ£»Ë«ÉȲ»³¬¹ý2100*2300mm£»³ýÈ¥±ß¿ò²ÄÁÏÄÚ²¿²£Á§¾»³ß´ç´óÔ¼ÔÚ600*1900mm×óÓÒ£¬¿ÉÒÔÂú×ã¾ø´ó¶àÊý³¡ËùʹÓÃÐèÇó¡£

 

ÍØ¼ª³¬´ó¹æ¸ñ·À»ð²£Á§ÃÅÃÅÌ广¸ñ´ïµ½2100*2700mm£»Í¬Ê±±ß¿ò·¶Î§ËõС£¬²£Á§Ãæ»ýÔö´ó£¬µ¥¿é²£Á§Ãæ»ý¿ÉÒÔ´ïµ½760*2385mm£¬Í¸¹âÃæ»ýΪ700*2330mm×óÓÒ£¬Îª·Ç±ê³¬´ó·À»ðÃŶ´¿ÚÌṩÁ˺ÏÊʵIJúÆ·¡£

 

³¬´ó³ß´ç·À»ð²£Á§Ãų§¼ÒÏà¹ØÍÆ¼ö:

·À»ð²£Á§ÃÅ

³¬´ó·À»ðÃÅ

ÄϾ©ÍؼªÏû·ÀÉ豸ÓÐÏÞ¹«Ë¾

µç   »°£º025-83997899

´«   Õæ£º025-56671585

Ïú   ÊÛ£º18061615050(΢ÐÅͬºÅ)

ÊÛ   ºó£º15950558388

ÒµÎñQQ £º437181679

ÓÊ   Ï䣺njtjxf@163.com

Íø   Ö·£ºwww.91904.cn( 2 - 5Ã×ȫϵÁзÀ»ðÃŲúÆ·Çëµã»÷µÇÂ¼ÍØ¼ªÏû·À¹Ù·½ÍøÕ¾)


 

  ¡¾ÏÂһƪÎÄÕ£º³¬´ó¹æ¸ñ·À»ðÃÅGFM3036¡¿  

°æÈ¨ËùÓУºÄϾ©ÍؼªÏû·ÀÉ豸ÓÐÏÞ¹«Ë¾
µØÖ·£ºÄϾ©ÊÐÆÖ¿ÚÇø±õ½­´óµÀ1ºÅ µç»°£º86-025-56671585
  ËÕICP±¸12018850ºÅ