全国空降快餐qq群联系方式,深圳盐田区中高端场子/外卖工作室广州大圈高端工作室 ,广佛高端98茶,qq小妹二维码图片

 
 
 
 
²úÆ·ÖÐÐÄ
 

 ·À»ðÃÅ´°ÏµÁÐ
 
 ¡¤·À»ðÃÅ
 ¡¤½Ï´ó·À»ðÃÅ
 ¡¤·À»ð´°
 ¡¤·À»ð¾íÁ±ÃÅ
 ¡¤µ²ÑÌ´¹±Ú
 ¡¤·À»ð¸ô¶Ï
 Ïû·À¹©Ë®ÏµÁÐ
 
 ¡¤Ïû»ð˨
 ¡¤Ë®Ç¹Ë®ÅÚ
 ¡¤Ë®±Ãϵͳ
 ¡¤ÅçÁÜϵͳ
 ¡¤¸øË®¹Ü·
 Ãð»ð¾ÈԮϵÁÐ
 
 ¡¤Ãð»ðÆ÷
 ¡¤½Ïϸ¸É·Û
 ¡¤ÅÝÄ­Ãð»ð
 ¡¤ÆøÌåÃð»ð
 »ðÔÖ±¨¾¯ÏµÁÐ
 
 ¡¤¸ÐÑÌ̽²â
 ¡¤Éù¹â̽²â
 ¡¤È¼ÆøÌ½²â
 ¡¤»ðÔÖ¿ØÖÆÆ÷
 ¡¤¿ØÖÆÄ£¿é
 ¡¤Ïû·Àµç×Ó
 Æ÷²Ä×°±¸ÏµÁÐ
 
 ¡¤Ë¨ÏäϵÁÐ
 ¡¤Ó¦¼±ÕÕÃ÷
 ¡¤¸öÈË·À»¤
 ¡¤·À»ð¶ÂÍ¿ÁÏ
 ÌØÖÖÃÅ´°ÏµÁÐ
 
 ¡¤ÌØÖÖ¸ÖÃÅ
 ¡¤¸ôÈÈ·À»ðÃÅ
 ¡¤ÈË·ÀÃÅ
 ¡¤ÅäÌ×É豸
 ¡¤Ö¸µ¼¼Û¸ñ

ÁªÏµÎÒÃÇ
 
µç»°£º025-83997899
´«Õ棺025-56671585
ÊÖ»ú£º180 6161 5050
ÊÛºó£º159 5055 8388
꿅᣼www.91904.cn
µØÖ·£º
ÄϾ©ÊÐÆÜÏ¼ÇøÂõ¸ÞÇÅ´´ÒµÔ°¿Æ¼¼Ñз¢»ùµØÒú´ºÂ·18ºÅ
 
 
½Ï´ó¹æ¸ñ·À»ðÃÅ  


½Ï´ó¹æ¸ñ·À»ðÃÅGFM3036
ä¯ÀÀ´ÎÊý£º3128´Î


 

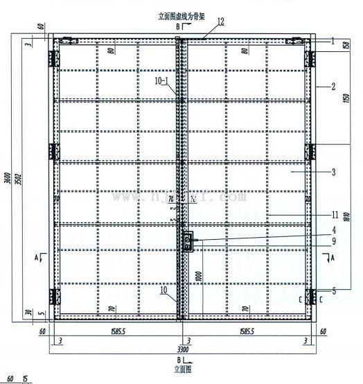
GFM3036ÊÇÖ¸¿í¶È3000mm£¬¸ß¶È3600mm¸ÖÖÊ·À»ðÃÅ;¸Ã¹æ¸ñÖ÷ÒªÉèÖÃÓÚ´ó¹æ¸ñÏû·ÀÃŶ´Ê¹Óã¬Ò»°ãÉè¼Æ°²×°ÔÚ²©Îï¹Ý¡¢ÌåÓý³¡¡¢Í¼Êé¹Ý¡¢»áÒéÖÐÐļ°´óÐ͹¤³§¡¢·¢µçÕ¾µÈ³¡Ëù¡£

 

3036¹æ¸ñÊôÓÚ½Ï´ó¹æ¸ñ·À»ðÃÅ£¬²úÆ·²ÉÓÃË«ÉÈÆ½°åƽ¿ª·½Ê½ÖÆ×÷£¬ÃÅÉȸ߶ȴﵽ3500mmÒÔÉÏ£¬ÎÞÐèÒ¡Í·ÉÏÁÁ£¬¿ªÆô¾»¶´¿Ú¹æ¸ñΪ2800mm*3500mm×óÓÒ£»ÏÞ¶ÈÂú×ãʹÓó¡ËùÐèÇó¡£

 

¿í¶È3Ã×£¬¸ß¶È3.6Ã×·À»ðÃÅÕûÌåÖØÁ¿¿É´ïµ½ÉÏǧ½ï£¬²úÆ·²ÉÓüӺñ¸Ö°å×÷Ϊ¿ò¼Ü²ÄÁÏ£¬ÄÚ²¿¼ÓÇ¿£¬¿òÉȽáºÏ´¦ÏâǶ·À»ðÅòÕÍÌõ£¬ÔÚ·ûºÏ·À»ð¸ôÈÈÐÔÄܵÄǰÌáÏ£¬±£ÕÏÃÅÌåÈÕ³£Ê¹Óð²È«ÐÔ¡£

 

½Ï´ó·À»ðÃÅÅ䱸´ó¹¦ÂÊרÓ÷À»ðÎå½ð¼þ£¬±£Ö¤ÁËÃÅÌåʹÓÃÀιÌÎȶ¨£¬²úÆ·±íÃæ²ÉÓÃÅçËÜ¿¾Æá¹¤ÒÕ´¦Àí£¬ÑÕÉ«¿ÉÑ¡£»Ò²¿É²ÉÓÃ304²»Ðâ¸Ö²ÄÁÏ£»ÄÍ»ðµÈ¼¶¿ÉÒÔ´ïµ½ÒÒ¼¶»ò¼×¼¶·À»ðÃŹ淶±ê×¼¡£

 

½Ï´ó·À»ðÃų§¼ÒÏà¹ØÍÆ¼ö£º

3Ã׽ϴó·À»ðÃÅ

3.6Ã׽ϴó·À»ðÃÅ


 

  ÒѾ­ÊǽϺóÒ»ÌõÐÂÎÅ  

°æÈ¨ËùÓУºÄϾ©ÍؼªÏû·ÀÉ豸ÓÐÏÞ¹«Ë¾
µØÖ·£ºÄϾ©ÊÐÆÖ¿ÚÇø±õ½­´óµÀ1ºÅ µç»°£º86-025-56671585
  ËÕICP±¸12018850ºÅ