全国空降快餐qq群联系方式,深圳盐田区中高端场子/外卖工作室广州大圈高端工作室 ,广佛高端98茶,qq小妹二维码图片

 
 
 
 
²úÆ·ÖÐÐÄ
 

 ·À»ðÃÅ´°ÏµÁÐ
 
 ¡¤·À»ðÃÅ
 ¡¤½Ï´ó·À»ðÃÅ
 ¡¤·À»ð´°
 ¡¤·À»ð¾íÁ±ÃÅ
 ¡¤µ²ÑÌ´¹±Ú
 ¡¤·À»ð¸ô¶Ï
 Ïû·À¹©Ë®ÏµÁÐ
 
 ¡¤Ïû»ð˨
 ¡¤Ë®Ç¹Ë®ÅÚ
 ¡¤Ë®±Ãϵͳ
 ¡¤ÅçÁÜϵͳ
 ¡¤¸øË®¹Ü·
 Ãð»ð¾ÈԮϵÁÐ
 
 ¡¤Ãð»ðÆ÷
 ¡¤½Ïϸ¸É·Û
 ¡¤ÅÝÄ­Ãð»ð
 ¡¤ÆøÌåÃð»ð
 »ðÔÖ±¨¾¯ÏµÁÐ
 
 ¡¤¸ÐÑÌ̽²â
 ¡¤Éù¹â̽²â
 ¡¤È¼ÆøÌ½²â
 ¡¤»ðÔÖ¿ØÖÆÆ÷
 ¡¤¿ØÖÆÄ£¿é
 ¡¤Ïû·Àµç×Ó
 Æ÷²Ä×°±¸ÏµÁÐ
 
 ¡¤Ë¨ÏäϵÁÐ
 ¡¤Ó¦¼±ÕÕÃ÷
 ¡¤¸öÈË·À»¤
 ¡¤·À»ð¶ÂÍ¿ÁÏ
 ÌØÖÖÃÅ´°ÏµÁÐ
 
 ¡¤ÌØÖÖ¸ÖÃÅ
 ¡¤¸ôÈÈ·À»ðÃÅ
 ¡¤ÈË·ÀÃÅ
 ¡¤ÅäÌ×É豸
 ¡¤Ö¸µ¼¼Û¸ñ

ÁªÏµÎÒÃÇ
 
µç»°£º025-83997899
´«Õ棺025-56671585
ÊÖ»ú£º180 6161 5050
ÊÛºó£º159 5055 8388
꿅᣼www.91904.cn
µØÖ·£º
ÄϾ©ÊÐÆÜÏ¼ÇøÂõ¸ÞÇÅ´´ÒµÔ°¿Æ¼¼Ñз¢»ùµØÒú´ºÂ·18ºÅ
 
 
½Ï´ó¹æ¸ñ·À»ðÃÅ  


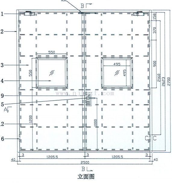
½Ï´ó¹æ¸ñ·À»ðÃÅ2527
ä¯ÀÀ´ÎÊý£º3062´Î


 

½Ï´ó¹æ¸ñ·À»ðÃÅ2527,Ö¸¿í¶È2.5Ã×£¬¸ß¶È2.7Ã×·À»ðÃÅ£¬²úÆ·²ÉÓöÆÐ¿¸Ö°å»òÕß²»Ðâ¸Ö²ÄÁÏÖÆÔ죻Ö÷Òª°²×°ÉèÖÃÔÚ¶´¿Ú½Ï´óµÄÉÌÒµÐÔ½¨ÖþºÍ³§·¿¡¢³µ¼äµÈ²¿Î»¡£

2500mm*2700mmÊôÓڷDZê·À»ðÃÅϵÁУ¬½Ï¹ýÆÕͨ2100mm*2300mmÒ»°ãÐÔ²úÆ·¹æ¸ñ£»ÆäÖÆ×÷²ÄÁϵÄÑ¡Ôñ¼°Éú²ú¹¤ÒÕ±ê×¼¸ßÓÚ³£¹æÃÅ£¬²úÆ·²ÉÓÃÕûÃÅÖÆÔ췽ʽ£¬ÎÞÐèÁÁ´°¡¢·â¶Â£¬ÃÅÉÈ¿ªÆô³ß´ç¿É´ïµ½2400mm*2600mm×óÓÒ¡£

½Ï´ó³ß´ç·À»ðÃŲÉÓüӺñ°å²ÄÖÆ×÷£¬ÄÚ²¿Ìî³äÄÍ»ð²ÄÁÏ£¬Å䱸ÏàÓ¦¹¦ÂÊ·À»ðÎå½ð¼þ£»ÅçËܹ¤ÒÕ´¦Àí£¬ÑÕÉ«·±¶à£¬¿É¸ù¾ÝÏû·ÑÕßÐèÇó½øÐÐÑ¡Ôñ£»·À»ðµÈ¼¶¸²¸Ç¼×¡¢ÒÒ¡¢±ûÈý¸ö¼¶±ð£¬²úÆ·ÔÚ·ûºÏÏû·ÀÒªÇóµÄͬʱ£¬±ØÐë±£ÕÏÈÕ³£Ê¹ÓõݲȫÐÔ¡£

ÍØ¼ªÏû·À½Ï´ó·À»ðÃŹæ¸ñ²ÉÓÃÒ»ÃÅÒ»Ö¤Ò»³ß´ç±ê×¢£¬ÌṩÏàÓ¦¼ì²â±¨¸æ¡¢ºÏ×÷Ö¤¡¢µç×ÓÉí·ÝÖ¤¡¢3CÖ¤ÊéµÈÏû·ÀÑéÊÕ×ÊÁÏ£»È·±£²úÆ··ûGB_12955-2008·À»ðÃŹ淶ҪÇó¡£

Ïà¹ØÍÆ¼ö:

½Ï´ó·À»ðÃÅ

2.5Ã׽ϴó·À»ðÃÅ

2.7Ã׽ϴó·À»ðÃÅ

ÄϾ©ÍؼªÏû·ÀÉ豸ÓÐÏÞ¹«Ë¾

µç   »°£º025-83997899

´«   Õæ£º025-56671585

Ïú   ÊÛ£º18061615050(΢ÐÅͬºÅ)

ÊÛ   ºó£º15950558388

ÒµÎñQQ £º437181679

ÓÊ   Ï䣺njtjxf@163.com

Íø   Ö·£ºwww.91904.cn( 2 - 5Ã×ȫϵÁзÀ»ðÃŲúÆ·Çëµã»÷µÇÂ¼ÍØ¼ªÏû·À¹Ù·½ÍøÕ¾)


 

  ¡¾ÏÂһƪÎÄÕ£º½Ï´ó¹æ¸ñ·À»ð²£Á§ÃÅ¡¿  

°æÈ¨ËùÓУºÄϾ©ÍؼªÏû·ÀÉ豸ÓÐÏÞ¹«Ë¾
µØÖ·£ºÄϾ©ÊÐÆÖ¿ÚÇø±õ½­´óµÀ1ºÅ µç»°£º86-025-56671585
  ËÕICP±¸12018850ºÅ