全国空降快餐qq群联系方式,深圳盐田区中高端场子/外卖工作室广州大圈高端工作室 ,广佛高端98茶,qq小妹二维码图片

 
 
 
 
²úÆ·ÖÐÐÄ
 

 ·À»ðÃÅ´°ÏµÁÐ
 
 ¡¤·À»ðÃÅ
 ¡¤½Ï´ó·À»ðÃÅ
 ¡¤·À»ð´°
 ¡¤·À»ð¾íÁ±ÃÅ
 ¡¤µ²ÑÌ´¹±Ú
 ¡¤·À»ð¸ô¶Ï
 Ïû·À¹©Ë®ÏµÁÐ
 
 ¡¤Ïû»ð˨
 ¡¤Ë®Ç¹Ë®ÅÚ
 ¡¤Ë®±Ãϵͳ
 ¡¤ÅçÁÜϵͳ
 ¡¤¸øË®¹Ü·
 Ãð»ð¾ÈԮϵÁÐ
 
 ¡¤Ãð»ðÆ÷
 ¡¤½Ïϸ¸É·Û
 ¡¤ÅÝÄ­Ãð»ð
 ¡¤ÆøÌåÃð»ð
 »ðÔÖ±¨¾¯ÏµÁÐ
 
 ¡¤¸ÐÑÌ̽²â
 ¡¤Éù¹â̽²â
 ¡¤È¼ÆøÌ½²â
 ¡¤»ðÔÖ¿ØÖÆÆ÷
 ¡¤¿ØÖÆÄ£¿é
 ¡¤Ïû·Àµç×Ó
 Æ÷²Ä×°±¸ÏµÁÐ
 
 ¡¤Ë¨ÏäϵÁÐ
 ¡¤Ó¦¼±ÕÕÃ÷
 ¡¤¸öÈË·À»¤
 ¡¤·À»ð¶ÂÍ¿ÁÏ
 ÌØÖÖÃÅ´°ÏµÁÐ
 
 ¡¤ÌØÖÖ¸ÖÃÅ
 ¡¤¸ôÈÈ·À»ðÃÅ
 ¡¤ÈË·ÀÃÅ
 ¡¤ÅäÌ×É豸
 ¡¤Ö¸µ¼¼Û¸ñ

ÁªÏµÎÒÃÇ
 
µç»°£º025-83997899
´«Õ棺025-56671585
ÊÖ»ú£º180 6161 5050
ÊÛºó£º159 5055 8388
꿅᣼www.91904.cn
µØÖ·£º
ÄϾ©ÊÐÆÜÏ¼ÇøÂõ¸ÞÇÅ´´ÒµÔ°¿Æ¼¼Ñз¢»ùµØÒú´ºÂ·18ºÅ
 
 
½Ï´ó¹æ¸ñ·À»ðÃÅ  


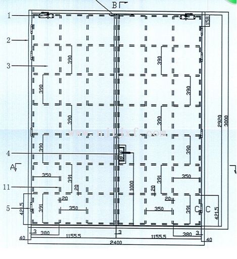
½Ï´ó¹æ¸ñ·À»ðÃÅGFM2430
ä¯ÀÀ´ÎÊý£º3132´Î


 

GFM2430ÊÇÖ¸¿í¶È2.4Ã×£¬¸ß¶È3Ã׵ĸÖÖÊ·À»ðÃÅ£»´Ë¹æ¸ñÊôÓڷDZêÃÅ£¬Ö÷ÒªÉèÖÃÔÚ½Ï¿í¼°½Ï¸ßÃŶ´²¿Î»£¬ÊǺܶà´óÐͳ¡¹ÝºÍ¹¤¿óÆóÒµ³£Óùæ¸ñ£¬ÊôÓÚ½Ï´ó¹æ¸ñ·À»ðÃÅϵÁС£

      2400mm*3000mm¹æ¸ñ²úÆ·²ÉÓöÆÐ¿¸Ö°å»òÕß²»Ðâ¸Ö°å×÷ΪÃÅ¿ò¼°ÃÅÉÈ¿ò¼Ü²ÄÁÏ£¬ÄÚ²¿Ìî³äÐÂÐÍÄÍ»ð²ÄÁϼ°·À»ð°å²Ä£¬½¡¿µ»·±££»ÃÅÉȺÍÃÅ¿òÆô±Õ´¦ÏâǶ·À»ðÅòÕÍÌõ£¬¿ÉÔÚ·¢Éú»ðÔÖʱÆðµ½ÃÜ·â·ÀÑ̵Ä×÷Óã»ÃÅÌå±íÃæÅçËܹ¤ÒÕ´¦Àí£¬×ÔÈ»ÃÀ¹Û£¬ÑÕÉ«¿ÉÑ¡¡£

     2430½Ï´ó³ß´ç·À»ðÃŲÉÓÃÕûÃÅÖÆÔ췽ʽ£¬Ë«¿ªÆ½°å£¬ÎÞÐèÒ¡Í··â¶Â£¬ÃÅÉȾ»³ß´ç´ïµ½2300mm*2900mm×óÓÒ£¬¿ÉÂú×ã»úеÉ豸¼°¹¤¾ß³µÁ¾µÄ³öÈë¡£

     ½Ï´ó·À»ðÃÅÃæ»ý´ó£¬ÕûÌå½ÏΪ³ÁÖØ£¬²úÆ·Ñ¡ÓüӺñ¸Ö°åͬʱÄÚ²¿¼ÓÇ¿£¬Å䱸Óë֮ƥÅäµÄ¸ßÐÔÄÜ·À»ðÎå½ð£¬ÔÚÂú×ãÄÍ»ð¼«ÏÞʱ¼äµÄͬʱ±£ÕϲúÆ·ÔÚÈÕ³£Ê¹ÓÃÖеݲȫÎȶ¨ÐÔ¡£

    2.4Ã׿í£¬3Ã׸߷À»ðÃÅÄÍ»ðµÈ¼¶Îª¼×ºÍÒÒÁ½¸ö·À»ðµÈ¼¶£¬Âú×ã1СʱºÍ1.5Сʱ·À»ðÃŹ淶ҪÇó£»ÍؼªÏû·ÀͬʱÌṩ²úÆ·ÏàÓ¦¼ì²â±¨¸æ¡¢ºÏ¸ñÖ¤¡¢3CÖ¤Êé¡¢µç×ÓÉí·ÝÖ¤µÈÑéÊÕ×ÊÁÏ¡£

Ïà¹ØÍÆ¼ö:

½Ï´ó³ß´ç·À»ðÃÅ

2.4Ã׽ϴó·À»ðÃÅ

3Ã׽ϴó·À»ðÃÅ

ÄϾ©ÍؼªÏû·ÀÉ豸ÓÐÏÞ¹«Ë¾

µç   »°£º025-83997899

´«   Õæ£º025-56671585

Ïú   ÊÛ£º18061615050(΢ÐÅͬºÅ)

ÊÛ   ºó£º15950558388

ÒµÎñQQ £º437181679

ÓÊ   Ï䣺njtjxf@163.com

Íø   Ö·£ºwww.91904.cn( 2 - 5Ã×ȫϵÁзÀ»ðÃŲúÆ·Çëµã»÷µÇÂ¼ÍØ¼ªÏû·À¹Ù·½ÍøÕ¾)


 

  ¡¾ÏÂһƪÎÄÕ£º½Ï´ó¹æ¸ñ·À»ðÃÅ2527¡¿  

°æÈ¨ËùÓУºÄϾ©ÍؼªÏû·ÀÉ豸ÓÐÏÞ¹«Ë¾
µØÖ·£ºÄϾ©ÊÐÆÖ¿ÚÇø±õ½­´óµÀ1ºÅ µç»°£º86-025-56671585
  ËÕICP±¸12018850ºÅ