全国空降快餐qq群联系方式,深圳盐田区中高端场子/外卖工作室广州大圈高端工作室 ,广佛高端98茶,qq小妹二维码图片

 
 
 
 
²úÆ·ÖÐÐÄ
 

 ·À»ðÃÅ´°ÏµÁÐ
 
 ¡¤·À»ðÃÅ
 ¡¤½Ï´ó·À»ðÃÅ
 ¡¤·À»ð´°
 ¡¤·À»ð¾íÁ±ÃÅ
 ¡¤µ²ÑÌ´¹±Ú
 ¡¤·À»ð¸ô¶Ï
 Ïû·À¹©Ë®ÏµÁÐ
 
 ¡¤Ïû»ð˨
 ¡¤Ë®Ç¹Ë®ÅÚ
 ¡¤Ë®±Ãϵͳ
 ¡¤ÅçÁÜϵͳ
 ¡¤¸øË®¹Ü·
 Ãð»ð¾ÈԮϵÁÐ
 
 ¡¤Ãð»ðÆ÷
 ¡¤½Ïϸ¸É·Û
 ¡¤ÅÝÄ­Ãð»ð
 ¡¤ÆøÌåÃð»ð
 »ðÔÖ±¨¾¯ÏµÁÐ
 
 ¡¤¸ÐÑÌ̽²â
 ¡¤Éù¹â̽²â
 ¡¤È¼ÆøÌ½²â
 ¡¤»ðÔÖ¿ØÖÆÆ÷
 ¡¤¿ØÖÆÄ£¿é
 ¡¤Ïû·Àµç×Ó
 Æ÷²Ä×°±¸ÏµÁÐ
 
 ¡¤Ë¨ÏäϵÁÐ
 ¡¤Ó¦¼±ÕÕÃ÷
 ¡¤¸öÈË·À»¤
 ¡¤·À»ð¶ÂÍ¿ÁÏ
 ÌØÖÖÃÅ´°ÏµÁÐ
 
 ¡¤ÌØÖÖ¸ÖÃÅ
 ¡¤¸ôÈÈ·À»ðÃÅ
 ¡¤ÈË·ÀÃÅ
 ¡¤ÅäÌ×É豸
 ¡¤Ö¸µ¼¼Û¸ñ

ÁªÏµÎÒÃÇ
 
µç»°£º025-83997899
´«Õ棺025-56671585
ÊÖ»ú£º180 6161 5050
ÊÛºó£º159 5055 8388
꿅᣼www.91904.cn
µØÖ·£º
ÄϾ©ÊÐÆÜÏ¼ÇøÂõ¸ÞÇÅ´´ÒµÔ°¿Æ¼¼Ñз¢»ùµØÒú´ºÂ·18ºÅ
 
 
½Ï´ó¹æ¸ñ·À»ðÃÅ  


½Ï´ó¹æ¸ñ·À»ðÃÅGFM2424
ä¯ÀÀ´ÎÊý£º3280´Î


 

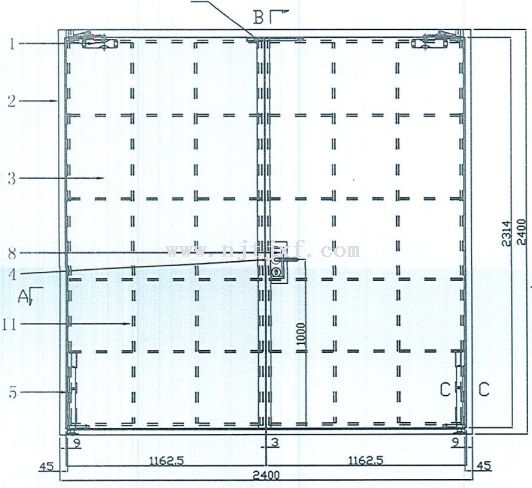
GFM2424ÊÇÖ¸¿í¸ß2.4Ã׸ÖÖÊ·À»ðÃÅ£¬ÊǺܶཨÖþÎïÖÐÏû·ÀÊèÉ¢°²È«Í¨µÀ³£Óóߴ磬²úÆ·ÄÍ»ðµÈ¼¶º­¸Ç¼×¡¢ÒÒ¡¢±ûÈý¸ö¼¶±ð¡£

 

2400mm*2400mmÊôÓÚ½Ï´ó¹æ¸ñ·À»ðÃÅϵÁвúÆ·£¬ÃÅÌå¿ò¼Ü²¿·ÖÖ÷Òª²ÉÓöÆÐ¿¸Ö°åºÍ²»Ðâ¸Ö°åÖÆÔ죬ÄÚ²¿Ìî³äÄÍ»ð¸ôÈȲÄÁÏ£¬±ß¿ò·ì϶´¦ÏâǶ·À»ðÃÜ·âÌõ£¬Ò»µ©·¢Éú»ðÔÖ¿ÉΪ»ð³¡ÖÐÈËÇÀÏÕ¾ÈÔ®¹¤×÷µÄ¿ªÕ¹Ìṩ±¦¹óʱ¼ä¡£

 

2Ã×4·À»ðÃŲÉÓÃÆ½°åË«ÉȶԿª·½Ê½ÖÆ×÷£¬ÃÅÉÈ¿ªÆô³ß´ç¿ÉÒÔ´ïµ½2300mm*2300mm×óÓÒ;ÎÞÐèÁíÍâÔö¼ÓÁÁ´°¡¢·â¶Â£»±íÃæÅçËܹ¤ÒÕ£¬×ÔÈ»ÈáºÍ£¬¼á¹ÌÄÍÓã»Å䱸¸ßÐÔÄÜ·À»ðÎå½ð¼þ£¬ÕûÌåÐÔÄÜ´ïµ½·À»ðÃŹ淶±ê×¼¡£

 

2.4Ã׽ϴó·À»ðÃųߴç½ÏΪ¹Ì¶¨£¬Ò²¿É¸ù¾ÝÏû·ÑÕßʹÓÃÐèÇó¶¨ÖÆÆäËû¹æ¸ñ£¬²úÆ·²ÉÓÃÒ»ÃÅÒ»Ö¤ÖÆ¶È£¬ÌṩÏàÓ¦µÄµç×ÓÉí·ÝÖ¤¡¢¼ì²â±¨¸æ¡¢ºÏ¸ñÖ¤¼°·À»ðÃÅ3CÇ¿ÖÆÐÔÈÏÖ¤µÈ×ÊÁÏ£¬È·±£Æ·ÖÊ¡£

 

½Ï´ó³ß´ç·À»ðÃÅ

2.4Ã׽ϴó·À»ðÃÅ

3Ã׽ϴó·À»ðÃÅ

ÄϾ©ÍؼªÏû·ÀÉ豸ÓÐÏÞ¹«Ë¾

µç   »°£º025-83997899

´«   Õæ£º025-56671585

Ïú   ÊÛ£º18061615050(΢ÐÅͬºÅ)

ÊÛ   ºó£º15950558388

ÒµÎñQQ £º437181679

ÓÊ   Ï䣺njtjxf@163.com

Íø   Ö·£ºwww.91904.cn( 2 - 5Ã×ȫϵÁзÀ»ðÃŲúÆ·Çëµã»÷µÇÂ¼ÍØ¼ªÏû·À¹Ù·½ÍøÕ¾)

 

 

  ¡¾ÏÂһƪÎÄÕ£º½Ï´ó¹æ¸ñ·À»ðÃÅGFM2430¡¿  

°æÈ¨ËùÓУºÄϾ©ÍؼªÏû·ÀÉ豸ÓÐÏÞ¹«Ë¾
µØÖ·£ºÄϾ©ÊÐÆÖ¿ÚÇø±õ½­´óµÀ1ºÅ µç»°£º86-025-56671585
  ËÕICP±¸12018850ºÅ